登陆成功…?/p>
产品概况9/span>
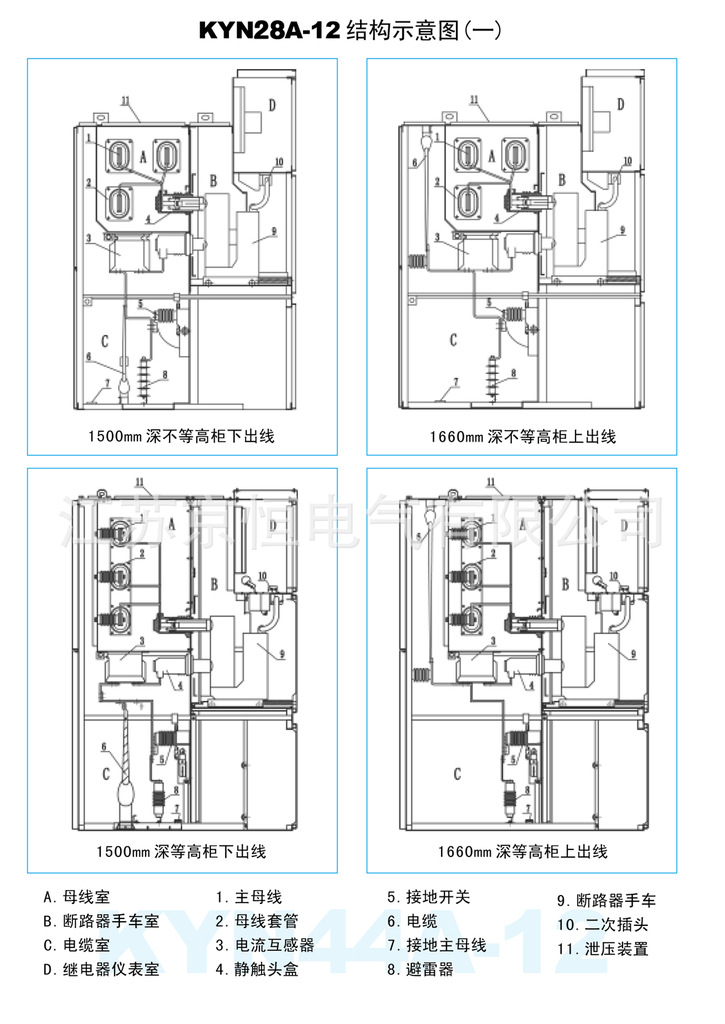
开关设备适用?.6-12KV三相交流50Hz单母线及单母线分段系统,用于接受、分配电能,并对电路实行控制、保护及监测、/span>
环境条件9/span>
1、周围空气温度:上限?40℃、下限,-15ℂ/span>
2、海?le;2000m
3、相对环境温度:日平均相对湿度不大于95%,月平均相对湿度不大?0%
4、地震:烈度不超??/span>
5、周围空气应不受腐蚀性或可燃气体、水蒸气等明显污柒/span>
6、无严重污秽及经常性的强烈振动,严酷条件下设计满足III级要求、/span>


高压成品柛/span>


高压真空断路?/span>

高压互感器与接地刀的母排连接工艹/span>

高压元件摆布及二次布线工艹/span>

高压互感器的母排制作工艺

高压产成品调试区


以上是关亍b>厂家直销KYN28-12交流金属封闭离开式开关设夆/b>的详细介绍,产品田b>江苏京恒电气有限公司为您提供,如果您寸b>江苏京恒电气有限公司产品信息感兴趣可?a class="checkContactWay" href="">联系供应啅/a>,您也可以查看更多相关的产品?/p>
蒋珍苰span>女士(销售经?
13852955182
公司电话?6 0511 13852955182
公司传真?6 0511 85106666
联系我时务必告知是在114批发网上看到的!
免责声明9/span>以上信息由会员自行提供,内容的真实性、准确性和合法性由发布会员负责?14批发网对此不承担任何责任
友情提醒9/span>为规避购买风险,建议您在购买相关产品前务必确认供应商资质及产品质量