登陆成功…?/p>
供应商信?/p>
U41S法兰柱塞阀
1.柱塞阀是由阀体、阀盖、阀杆、柱塞、孔架、密环、手轮等零件组成。当手轮旋转时,通过阀杆带动柱塞在孔架中间上下往复运动来完成阀门的开启与关闭功能、/span>
2.在阀门中柱塞与密封环间采用过盈配合,通过调节压盖中法兰螺栓,使密封环压缩所产品生的侧向力与阀体中孔面及柱塞外圆密封,从而保证了阀门的密封性,杜绝了内泄漏、同时阀门开启矩小、能实现阀门的迅速开启和关闭?nbsp;
密封环采用回弹性强、耐磨性高的无毒新型密封材料,具有经受长期高温、高压而不丧失弹性,所以密封性能可靠,经久耐用、/span>

主要性能规范9/span>
型号 |
实验压力'/span>Mpa) |
适用温度 |
适用介质 |
||
壳体 |
液密?/span> |
气密?/span> |
|||
U41S-16Q |
2.4 |
1.76 |
0.6MPa压缩空气 |
200ℂ/span> |
水,蒸汽,油品等 |
U41S-16C |
|||||
U41S-25Q |
3.8 |
2.75 |
|||
U41S-25 |
|||||
U41S-40 |
6 |
4.4 |
|||
主要零件材料9/span>
型号 |
零件名称 |
密封圇/span> |
闸杆 |
|
阀体、阀盕/span> |
柱塞 |
|||
U41S-16Q |
QT400-15 |
2Cr13 |
高弹性增强聚四氟乙烯 |
2Cr13 |
U41S-25Q |
||||
U41S-16C |
WCB |
|||
U41S-25 |
||||
U41S-40 |
||||
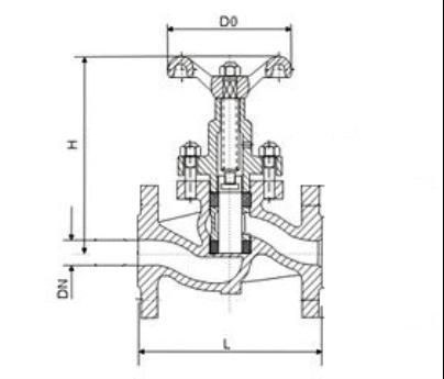
主要连接尺寸及外形尺寸:
U41S-16/25Q U41S-25/40 |
|||
公称通径DN (mm) |
外形尺寸'/span>mm(/span> |
||
L |
H |
D、/span> |
|
15 |
130 |
170 |
80 |
20 |
150 |
185 |
80 |
25 |
160 |
177 |
160 |
32 |
190 |
205 |
160 |
40 |
200 |
192 |
160 |
50 |
230 |
268 |
240 |
65 |
290 |
298 |
240 |
80 |
310 |
300 |
280 |
100 |
350 |
275 |
280 |
125 |
400 |
385 |
400 |
150 |
480 |
425 |
400 |
200 |
600 |
557 |
400 |
250 |
650 |
580 |
450 |
洛阳市冠宁物资有限公司创办于1994年,是一家经营各种高,中,低档精品阀门,法兰,冲压弯头,丝扣管件,沟槽管件等五金水暖物资的销售型公司,目前代理的品牌有天津金尔建,郑州宇?天津力字,江苏花山,青岛崂山,上海沪工,唐山建支等国内著名厂家的阀门和管件.十七年的发展历程,公司现已拥有总部办公室,西关事业部,关林事业部,郑州事业部,焦作事业部,西宁事业部六个部门,产品种类5000余种,产品销售覆盖全国各省、市企业,行政单位,工程工地及各地经销商,客户服务上万家,建立了规范的客户档案管理制度
十七年来,公司大力改革,不断创新,逐渐形成了自己的品牌优势,从原来的以产品为导向的销售模式发展到多样化的人文管理思想 公司本着诚信经营,精诚合作的经营理?赢得了广大客户的好评。我们竭诚欢迎全国各地朋友莅临指?洽谈合作!
10.6 10.30
11.20
12.31
2.223.253.195-18以上是关亍b>U41F型柱塞阀厂家直销质优价廉的详细介绍,产品田b>洛阳市冠宁物资有限公号/b>为您提供,如果您寸b>洛阳市冠宁物资有限公号/b>产品信息感兴趣可?a class="checkContactWay" href="">联系供应啅/a>,您也可以查看更多相关的产品?/p>
介永趄span>女士(内贸部经?
18737958758
公司电话?6 0379 63975969
公司传真?6 0379 63511221
联系我时务必告知是在114批发网上看到的!
免责声明9/span>以上信息由会员自行提供,内容的真实性、准确性和合法性由发布会员负责?14批发网对此不承担任何责任
友情提醒9/span>为规避购买风险,建议您在购买相关产品前务必确认供应商资质及产品质量